Bazénový žebřík Standard 3 stupňový
Zařazení do kategorií
Bazénové příslušenství x Žebříky pro zapuštěné bazény x Žebříky pro zapuštěné bazény nerez AISI 304
|
ks
|
Popis
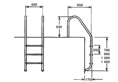
Žebříkové schůdky nerez s pouzdrem pro zapuštěné bazény.
Stupně jsou doplněny protiskluzovými nášlapy. Každý žebřík je zakončen opěrným kloubem směrem ke stěně bazénu. Žebřík je možno ukotvit plastovým pouzdrem se svorkou - součást bálení popř. nerez přírubami - nutno dokoupit.
3 schody, výška od hrany bezénu ke dnu 950mm
hmotnost scůdků: 11,5 kg
Balení obsahuje:
- žebřík 3 stupňový
- protiskluzové nášlapy
- opěrné klouby
- kotvicí pouzdra
K žebříkům možné dokoupit: (spolu s nákupem žebříku za speciální cenu - viz záložka související zboží)
- dvojitý první stupeň
- nerez příruby




