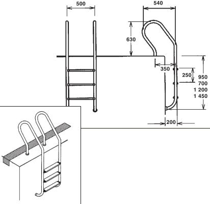
Bazénový žebřík Mixta 4 stupňový
Zařazení do kategorií
Bazénové příslušenství x Žebříky pro zapuštěné bazény x Žebříky pro zapuštěné bazény nerez AISI 304
|
ks
|
Popis
Žebříkové schůdky nerez s pouzdrem pro zapuštěné bazény.
Stupně jsou doplněny protiskluzovými nášlapy. Každý žebřík je zakončen opěrným kloubem směrem ke stěně bazénu. Žebřík je možno ukotvit plastovým pouzdrem se svorkou - součást bálení popř. nerez přírubami - nutno dokoupit.
4 schody, výška od hrany bazénu ke dnu 1200mm
hmotnost schůdků: 14 kg
Balení obsahuje:
- žebřík 4 stupňový
- protiskluzové nášlapy
- opěrné klouby
- kotvicí pouzdra
K žebříkům možné dokoupit: (spolu s nákupem žebříku za speciální cenu - viz záložka související zboží)
- dvojitý první stupeň
- nerez příruby




